



Casa no Condomínio Rosa Internacional
Praia do Rosa, Imbituba
Corretor Responsável:

Vânia Cardoso
CRECI: 16748
Sobre este Imóvel
Casa de Alto Padrão no Condomínio Rosa Internacional – Conforto e Exclusividade
Viva em um dos endereços mais desejados do litoral catarinense. Localizada no Condomínio Rosa Internacional, esta residência une segurança, lazer e contato com a natureza em um só lugar.
O condomínio oferece segurança 24 horas, ruas arborizadas e áreas comuns impecáveis, perfeitas para famílias e para quem busca momentos de tranquilidade. A poucos minutos das praias do Rosa e da Barra, você estará cercado por cenários de tirar o fôlego e águas cristalinas.
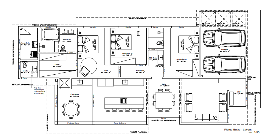
Detalhes da residência (185 m² de área construída):
-
Sala de TV ampla e integrada à sala de jantar e cozinha
-
Suíte master com closet e banheira de hidromassagem
-
Dois dormitórios arejados e bem iluminados
-
Banheiro social
-
Espaço gourmet com acesso direto à piscina
-
Piscina privativa
-
Lavabo externo
-
Lavanderia
-
Garagem para dois veículos
Um imóvel que une sofisticação, conforto e privacidade, pronto para receber sua família.
Agende uma visita e descubra por que esta pode ser a sua nova casa no Rosa Internacional! Clique aqui!
Visite também: Construtora em Garopaba
Simule seu Financiamento
Estimativa Mensal
Imóveis Similares
Outras opções que podem te interessar
R$ 1.600.000
Casa de alto padrão à venda em Garopaba
Panorâmico, Garopaba
R$ 1.900.000
Casa à Venda em Garopaba com vista para o mar – Alto Padrão e Exclusividade!
Village, Garopaba
Casa à Venda em Garopaba – Condomínio Caminho da Lagoa
Palhocinha, Garopaba



